Region München
München
-2 °C
Bedeckt
Wetter
search Suche
menu Menü
arrow_back zur Immobilien-Übersicht

Erding-Einfamilienhaus m.2 Gge. in ruhiger Lage-Bezugsfrei


Beschreibung


Erding Ortsteil Altenerding – ruhige schöne Lage -
älteres Einfamilienhaus zum Verlieben.

TOP: schönes Grundstück ca. 949 m²
TOP: Anteil an der Zufahrt 1/3 = 135 m² Gesamtgrundstück 1.084 m²
TOP: Ideal für die eine große Familie
TOP: mit großen zwei Garagen und Stauraum über den Garagen.
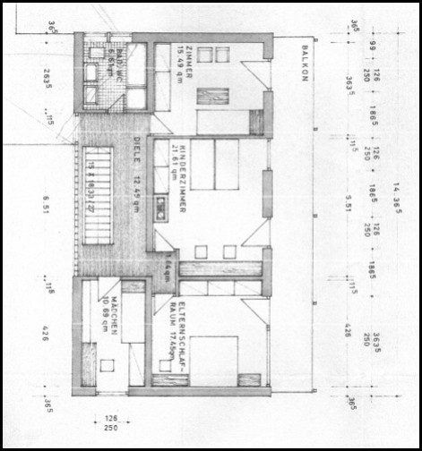
TOP: Renovierungsbedürftig mit ca. 148 m² Wohnfläche.
TOP: Objekt mit 7 Zimmer und 2 Bädern
TOP: Verkehrsgünstige Lage in Altenerding

Besichtigungstermine nach Exposeeanforderung möglich.

Exposee anfordern bitte unter
Info@Kreipl-Kellnberger-Immobilien-GmbH.de
bitte die komplette Adresse mit angeben.

Energiepass Art - Bedarfsausweis
Energiebedarf - 240,37 kWh-(m²a)
Energieeffizienzklasse - G
Ausweis gültig bis - 28.12.2035
Baujahr Gebäude - 1968
Wesentliche Energieträger - Heizöl

Lage


In Altenerding, in guter ruhiger Lage ein Einfamilienhaus mit großem Garten.
Perfekt für Menschen mit grünen Daumen. Die S Bahn S2 Altenerding ist zu Fuß in wenigen Minuten erreichbar.

Die altbayrische Herzogstadt Erding liegt harmonisch eingebettet zwischen der bayerischen Landeshauptstadt München und Landshut. Erding ist eine der zukunftsträchtigsten Städte Deutschlands, nicht zuletzt deshalb, weil man in nahezu allen Lebensbereichen, eine gelungene Synthese von Moderne und Traditionsbewusstsein findet.



Ausstattung


Die Firma KREIPL-KELLNBERGER-IMMOBILIEN-GMBH sucht laufend Miet- und Verkaufsobjekte in jeder Größe. Auch für vorgemerkte Kunden. Schnelle diskrete Bearbeitung u. GÜNSTIGE PREISE.

Wir bieten kompetente Beratung u.Verkauf, gepaart mit 38 - jähriger Erfahrung und kostengünstige Konditionen.

Bei Interesse am Objekt oder wenn Sie eine Beratung zu Ihrer Immobilie wünschen, schreiben Sie uns eine kurze E-Mail an info@Kreipl-Kellnberger-Immobilien-GmbH.de (leider wegen Datenschutz notwendig) wir melden uns sofort bei Ihnen.


Details

ObjektNr.

A1081

Objektart.

Haus

Typ

Einfamilienhaus

Vermarktungsart

Kauf

Nutzungsart

Wohnen

Ort

85435 Erding

Kaufpreis

1.190.000,00 €

Provision

2,38 % inkl. MwSt. Käuferprov. vom Kaufpreis



Wohnfläche

148 m²

Grundstuecksfläche

1084 m²

Zimmer

7

Unterkellert

Ja

Baujahr

1968

Fliesenboden

Ja

Parkettboden

Ja

Zentralheizung

Ja

ölheizung

Ja

Garage

Ja

Energiepass

Bedarf

Energiepass Gültigkeit

28.12.2035

Endenergiebedarf

240,37



Bilder


Anbieter




placeGoogle Maps öffnen

keyboard_arrow_up